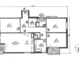
Celková rozloha: 123,1 m² + dvě GS 19,1 m² a 12,7 m² + sklep 2,6 m²
Nabízím k prodeji nadstandardně navržený, vzdušný, světlý byt 4+kk se dvěma balkony o celkové rozloze 123,1 m² v ulici Za Valem, Praha 4, Kunratice. Byt disponuje dvěma koupelnami a má dvě toalety. K bytu náleží dvě garážová stání 19,1 m² a 12,7 m² a sklep 2,6 m² s bezpečnostními dveřmi v 1.NP domu. Byt se nachází ve 4. NP (ze 6 NP) novostavby s výtahem.
Dominantou bytu je obývací pokoj s kuchyňskou částí 33,3 m², který je orientován jihozápadně. Je zde vstup na balkon, 3,29 m², který nabízí soukromí a výhled na vzrostlé stromy. Kuchyňská část s oknem je vybavena kuchyňskou linkou s vestavnou myčkou, sklokeramickou deskou, horkovzdušnou troubou a digestoří, samostatný ostrůvek s prostorným úložným prostorem je spojen s barovým pultem vč. barových židlí. Pracovní deska je z umělého kamene.
Byt je vybaven bezpečnostními dveřmi. Vstup je přes prostornou předsíň, 16,43 m², kde je umístěna praktická vestavná skříň se zrcadlem. Dále je zde předsíňová stěna.
Byt má 3 neprůchozí pokoje. Hlavní ložnice, 15,51 m², je orientována jihozápadně a je vybavena čtyřdílnou vestavnou skříní se zrcadly.
Druhá ložnice, 15,51 m², je orientována na východ a nabízí úžasný výhled do udržovaného parku s okrasnými stromy a na Kunratický les.
Třetí ložnice, 15,71 m², je orientována jihovýchodně se vstupem na druhý balkon, 4,27 m², který rovněž nabízí výhled na udržovaný park a Kunratický les.
První koupelna, 8,4 m², je s oknem na jih, rohovou vanou a umyvadlem. Dále je zde zrcadlo s osvětlením a praktická dřevěná skříňka.
Druhá koupelna, 3,69 m², je se sprchovým koutem, umyvadlem, toaletní skříňkou se zrcadlem a toaletou.
Samostatná toaleta, 1,7 m² je vybavena umyvadlem a skříňkou.
Byt má praktickou šatnu/komoru, 3,65 m², do které je vstup z předsíně.
Byt se prodává částečně zařízený, po dohodě možnost ponechání některých dalších částí nábytku. Domácí telefon a vysokorychlostní internet k dispozici. Topení a teplá voda jsou zajišťovány centrální domovní plynovou kotelnou. V domě je uzamykatelná společná sušárna a kolárna. Velmi dobrá dopravní dostupnost, cca 7 min Bus stanice metra C, Kačerov nebo Budějovická. Veškerá občanská vybavenost v místě, MŠ, ZŠ, pošta, bankomat, lékárna, různé obchody, restaurace atd., 7 min autem nákupní centrum Westfield Chodov. U domu je park, v přímém sousedství Kunratický les o rozloze 300 hektarů, s širokými možnostmi sportovního, rekreačního a kulturního vyžití.
