Rozloha: 91 m2
Výše nájemného 37 500 Kč/měsíc
V exkluzivním zastoupení majitele nabízím k pronájmu samostatný, světlý, reprezentativní administrativní prostor o celkové rozloze 90,5 m2 v atraktivní lokalitě, Vinohrady a to na Tylově nám. Praha 2.
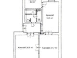
Prostor je umístěn v secesní budově po rekonstrukci v prvním patře. Jedná se o tři kanceláře z toho dvě, jsou neprůchozí a zasedací místnost s kuchyňkou vyrobenou na míru.
Neprůchozí kanceláře mají rozlohu 22 m2 a 27 m2, ale mohou být i průchozí. Zasedací místnost s kuchyňkou, kterou lze využít i jako kancelář je o rozloze 19 m2. V Kuchyňce dřevěná stěna, stoly a židle budou odvezeny.
Dále je zde menší kancelář, 9 m2, která může být využita jako archiv.
Na podlahách jsou původní, dřevěné parkety – vídeňský kříž.
Samostatná toaleta s umyvadlem a sprchový kout. Přístup 24 hod/ 7 dnů v týdnu.
Počítačové a internetové připojení, možnost využití světelného kabelu.
Vlastní plynový kotel Junkers.
Velmi dobrá dopravní dostupnost. 3 min chůze stanice metra C, I.P. Pavlova a zastávka TRAM. Veškerá občanská vybavenost v místě.
